Nabídka bytů
garden lofts
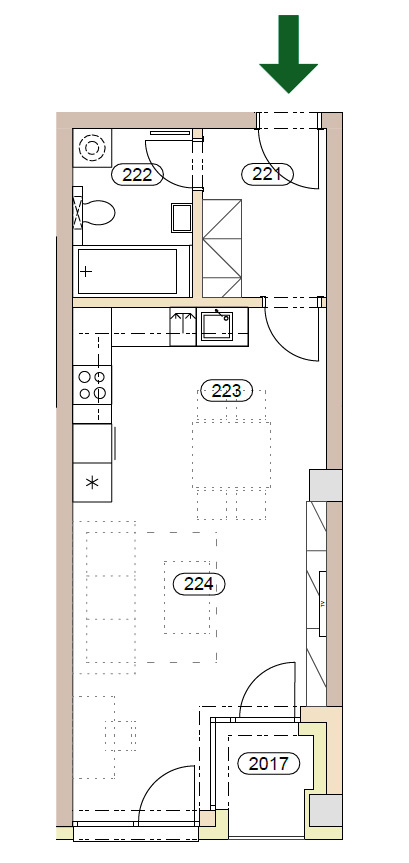
Byt 2.01
patro:
2.NP
dispozice:
1+kk
obytná plocha:
36.59 m2
balkon:
1.98 m2
užitná plocha:
0.00 m2
cena:
5 298 050 Kč

