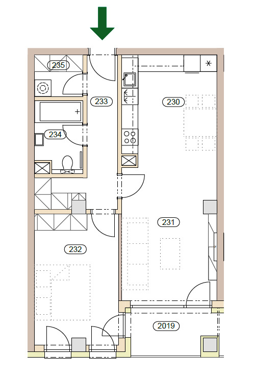
Nabídka bytů
garden lofts
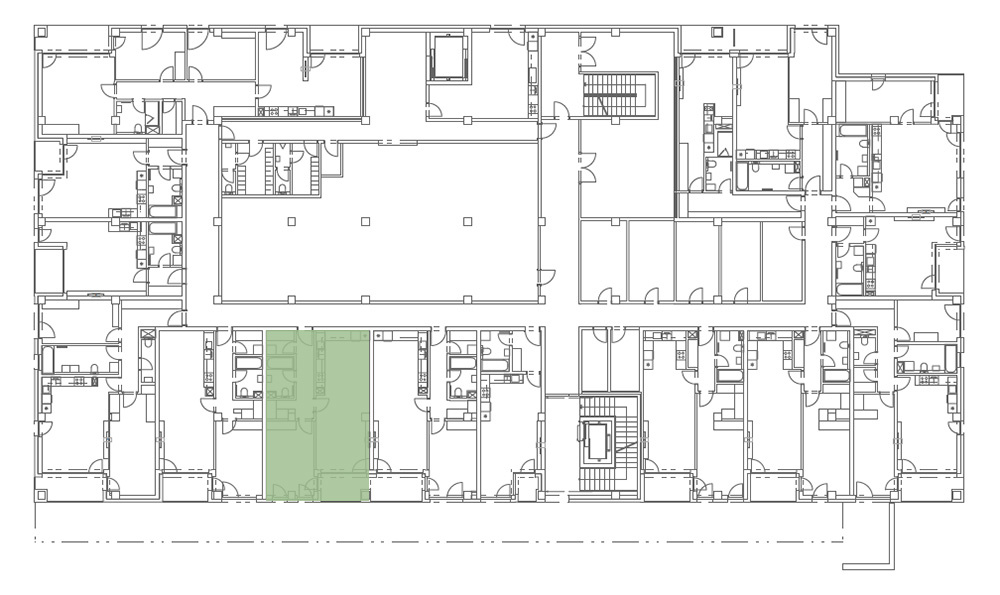
Byt 2.03
patro:
2.NP
dispozice:
2+kk
obytná plocha:
59.41 m2
balkon:
4.56 m2
užitná plocha:
0.00 m2
cena:
8 489 300 Kč

