Nabídka bytů
garden lofts
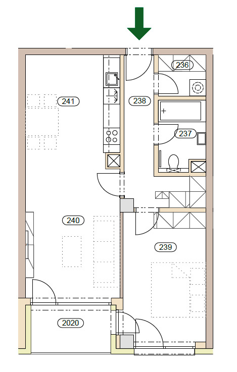
Byt 2.04
patro:
2.NP
dispozice:
2+kk
obytná plocha:
59.70 m2
balkon:
4.66 m2
užitná plocha:
0.00 m2
cena:
8 527 595 Kč

